MAP
Watch Video
Photos
Map
Schools

Merrilands 377 Mangorei Road, Merrilands

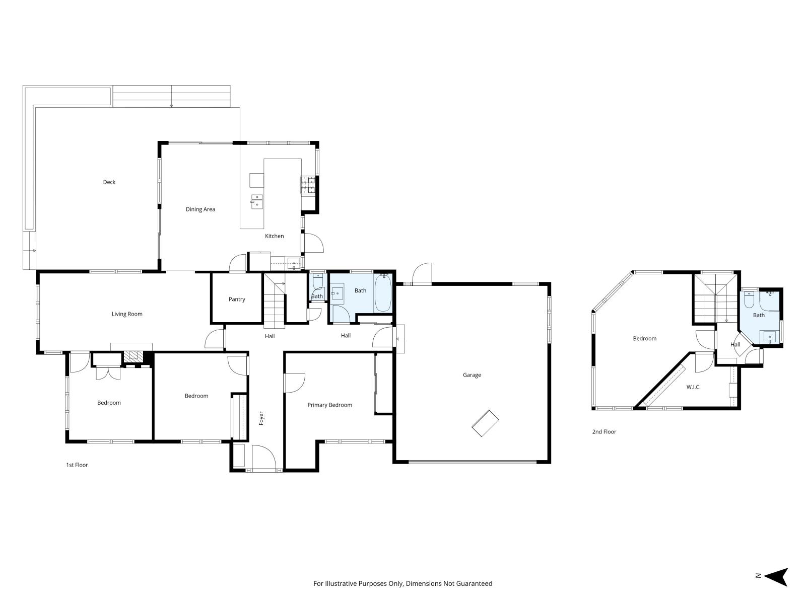
4 Bedrooms2 Bathrooms2 GaragesID NPU216132
Buyers $885,000+

The Perfect Canvas for Family Living

This is a home with great bones and exciting potential, perfect for families ready to invest a little time and vision to create something special.

Set across two levels, the four bedroom layout is well suited to family living. The master bedroom enjoys privacy upstairs, complete with a walk in wardrobe, ensuite, and elevated outlook, where sweeping rural views create a calm and private parents retreat. The remaining bedrooms are positioned on the main level with built in wardrobes and easy access to the living spaces.

At the heart of the home is a modern kitchen that connects seamlessly to the dining area, opening via sliders to an elevated deck with leafy views that provide a lovely foundation for future entertaining. Inside, the opportunity is refreshingly simple. New carpet and a full interior repaint would instantly transform the home and unlock its next chapter.

The exterior has already been taken care of, having been recently painted with durable plasticated paint, offering long lasting protection and peace of mind for years to come.

A versatile study near the kitchen provides flexibility as a home office, homework zone, pantry, or additional storage. The fully fenced section offers privacy and security, while double internal access garaging adds everyday convenience.

With strong bones, a smart layout, and only cosmetic upgrades required, this is a golden opportunity to add serious value.

Zoned for Mangorei School and just a two minute drive from the Merrilands Shopping Centre, this is a smart buy in a location families love.
CHATTELS  Auto Garage Door Opener and Remote   |   Clothesline   |   Dishwasher   |   Electric Stove   |   Hob/cooktop - Gas   |   Extractor Fan   |   Fixed Floor Coverings   |   Heated Towel Rail x 2   |   Heat Pump and Remote   |   Letterbox   |   Light Fittings   |   Range Hood   |   Refrigerator   |   Satellite Dish   |   Washing Machine   |   Waste Disposal
Open Home
Sun 1 March 2026
1:00pm - 1:30pm
Features
Area | 250.00m2Land | 576 m2Rates | $4,691.38LV | $405,000RV | $870,000
PRINT ENQUIRE NOW

Harpreet Gill

M  022 480 1547  P  

Enquire Now










ASAP  0-2 months  3-6 months 
Yes  No 













Privacy Statement




Property Brokers Ltd MREINZ acknowledges and complies with the provisions of the Privacy Act 1993 and its amendments. In particular Property Brokers policy covers the following specific points relevant to this topic and this website:


Any client information you provide to Property Brokers will be used only for the purpose for which it is given and will not be passed on to any third party except in accordance with the law, or with specific consent.


In the main, this will be to facilitate company communication with you in order to better meet your real estate objectives and expectations.


Information provided by you will remain confidential to Property Brokers Real Estate Ltd MREINZ. This particularly applies to your reasons for selling which we regard and treat as a personal and private matter.


Any information divulged by you to any other website linked to the Property Brokers website is given at your discretion alone, and Property Brokers takes no responsibility for any disclosures that might result.


Information provided on this website is copyrighted to Property Brokers and may be accessed, downloaded and used for personal use only. The material must not be modified, copied or reproduced for gain or commercial use without the consent in writing of Property Brokers Real Estate Ltd MREINZ.


 




Google disclaimer


This website uses Google Analytics to help analyse how users use the site.


The tool uses "cookies," which are text files placed on your computer, to collect standard Internet log information and visitor behaviour information in an anonymous form.


The information generated by the cookie about your use of the website (including your IP address) is transmitted to Google. This information is then used to evaluate visitors use of this website and to compile statistical reports on website activity.


We will never (and will not allow any third party to) use the statistical analytics tool to track or to collect any Personally Identifiable Information of visitors to our site. Google will not associate your IP address with any other data held by Google. Neither we nor Google will link, or seek to link, an IP address with the identity of a computer user.


You may refuse the use of cookies by selecting the appropriate settings on your browser, however please note that if you do this you may not be able to use the full functionality of this website.


By using this website, you consent to the processing of data about you by Google in the manner and for the purposes set out above.


This website uses Google AdWords


This website uses the Google AdWords remarketing service to advertise on third party websites (including Google) to previous visitors to our site. It could mean that we advertise to previous visitors who havent completed a task on our site, for example using the contact form to make an enquiry. This could be in the form of an advertisement on the Google search results page, or a site in the Google Display Network. Third-party vendors, including Google, use cookies to serve ads based on someones past visits to the [CLIENT NAME] website. Of course, any data collected will be used in accordance with our own privacy policy and Googles privacy policy.


You can set preferences for how Google advertises to you using the Google Ad Preferences page, and if you want to you can
opt out of interest-based advertising entirely by cookie settings or
permanently using a browser plugin.


Harpreet Gill
Rapid SSL Site Seal
Similar Listings
14a Arawa Street
Welbourn
OPEN HOME:  Sun 1st Mar 2026 1.45pm - 2.15pm

From the moment you arrive, this beautifully designed modern home makes an immediate statement. Stylish, smart, and incredibly well thought out, it offers the ...

2 Bedrooms1 Bathroom1 Garage
Buyers $749,000+
19 Ashmore Drive
Frankleigh Park
OPEN HOME:  Sun 1st Mar 2026 1.00pm - 1.30pm

Welcome to this versatile home, located in a quiet area in popular Frankleigh Park. You will love how the current owner has thoughtfully updated the interior with ...

4 Bedrooms2 Bathrooms2 Garages
Deadline Sale
12C Takiroa Street
Urenui
OPEN HOME:  Sun 1st Mar 2026 2.00pm - 2.30pm

Anticipation builds on the drive up to this gorgeous property and as you enter through the main gates, expectations are fully met at the first sight of this ...

4 Bedrooms1 Bathroom2 Garages
Auction 5 March 2026 Property Brokers, 37 Hobson Street, New Pymouth | 1:00pm
15A Heta Road
Highlands Park
OPEN HOME:  Sun 1st Mar 2026 4.00pm - 4.30pm

Tucked away on a generous rear section, this well designed family home offers space, privacy, and everyday comfort in a sought after Highlands Park location ...

4 Bedrooms2 Bathrooms2 Garages
Buyers $799,000+